



Zweiachs-Überfahr-Tieflade-Anhänger.
Federung Parabelfedern mit wartungsfreien Silentbuchsen.
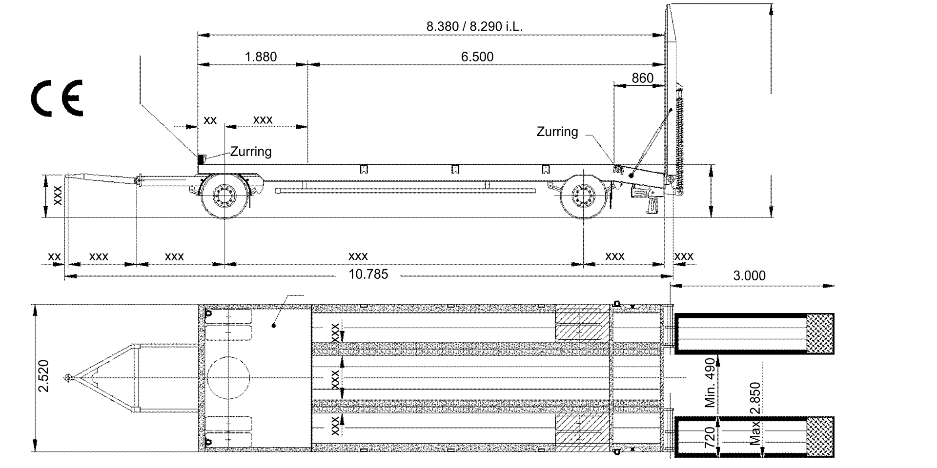
Bodenbelag Nadelholzboden längsverlaufend, Tieflade-Plattform und Auffahrschräge mit 60 mm starken Bohlen belegt. Plattform über dem Drehgestell aus hochfestem Feinkornstahl.
Rampen Einteilige Rampen feuerverzinkt (offene Bauweise) mit eingelegtem, längsverlaufendem Nadelholzbelag, 50 mm stark. Rampenverschub von 2.850 außen auf 490 mm innen. Rampenhaltegestänge mit Einhängemöglichkeit an der Rampe.
Gesamtgewicht | 20.000 kg |
---|---|
Eigengewicht | 5.300 kg |
Nutzlast | 14.700 kg |
Bereifung | 8-fache Radialbereifung, Größe 235 / 75 R 17.5 |
Bemerkungen |
|
Gesamtgewicht | 18.000 kg |
---|---|
Eigengewicht | 5.300 kg |
Nutzlast | 12.700 kg |
Bereifung | 8-fache Radialbereifung, Größe 235 / 75 R 17.5 |
Bemerkungen |
|